Atelier
Architectures
Equipe
Contact
Atelier
Architectures
Equipe
Contact
ESTINNES / 13
Type:
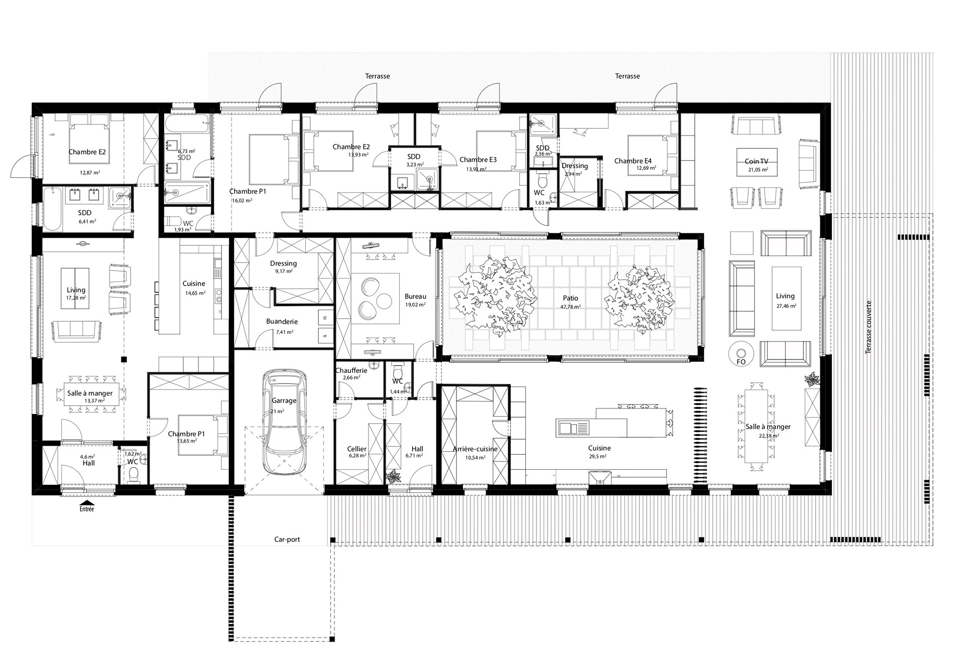
Rénovation d'une ferme en maison unifamiliale.
Localisation:
Estinnes, Mons
Phase:
Chantier en cours
Date:
2019
Team:
Robert + Christina